Projects
Photography
About
Contact
Projects
Photography
About
Contact
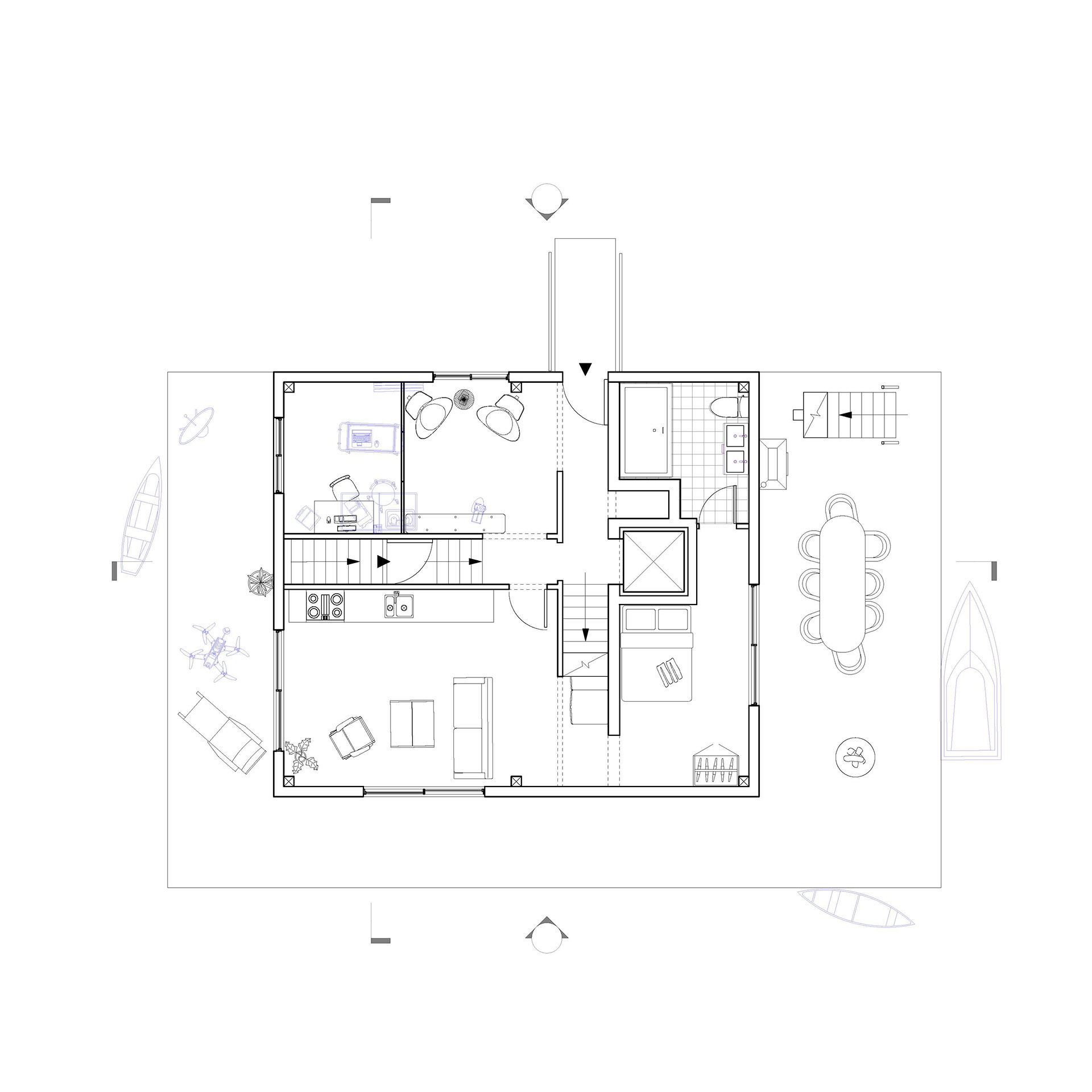
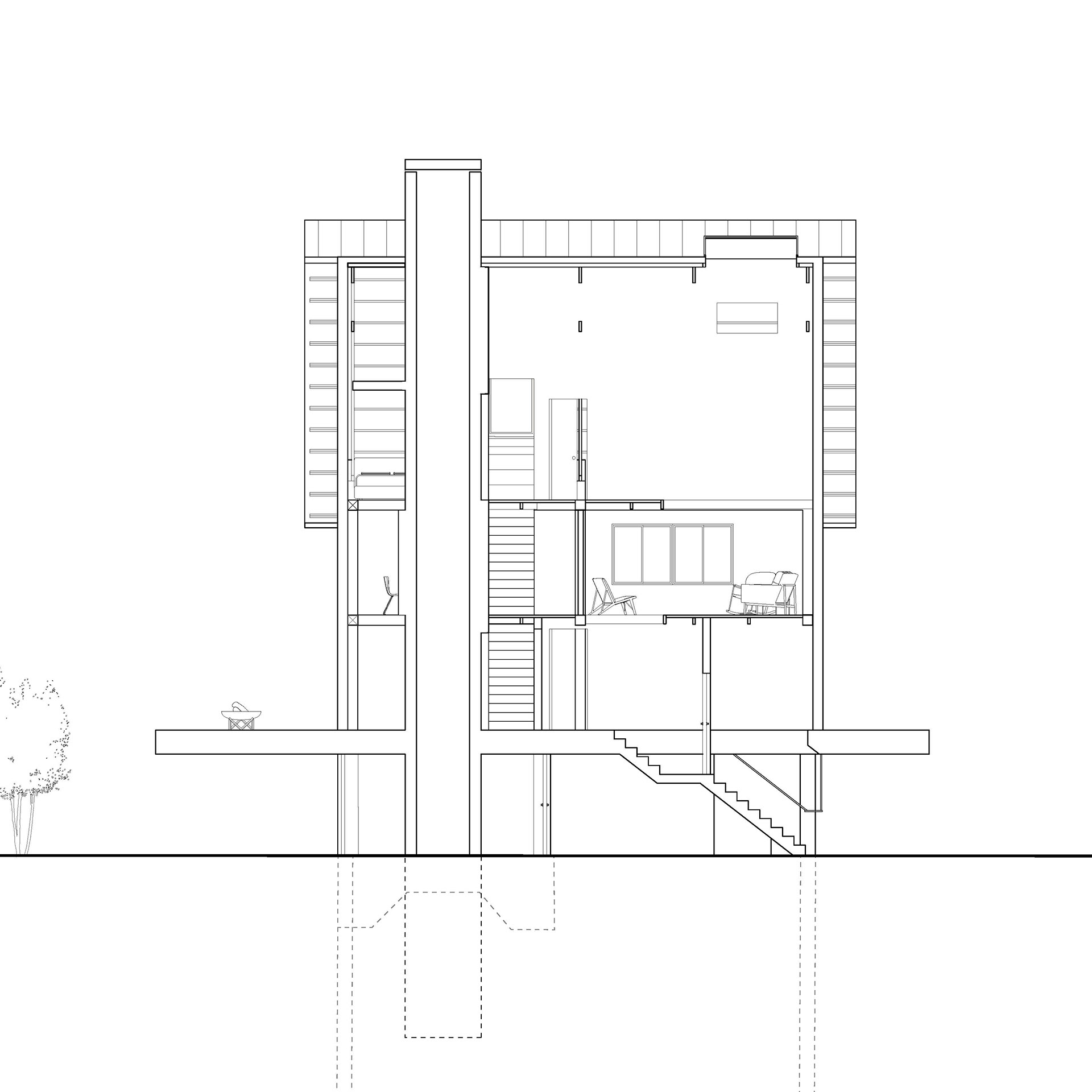
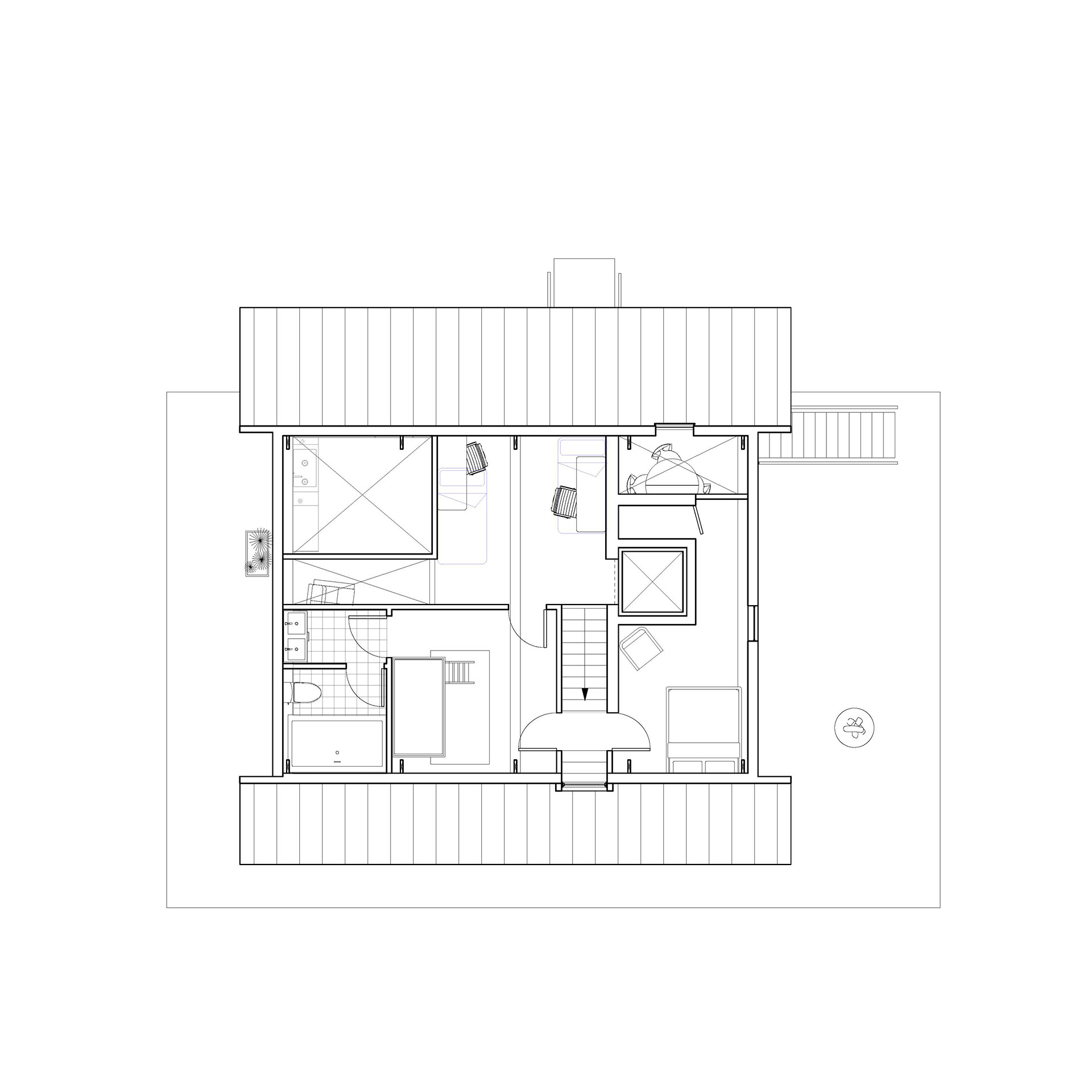
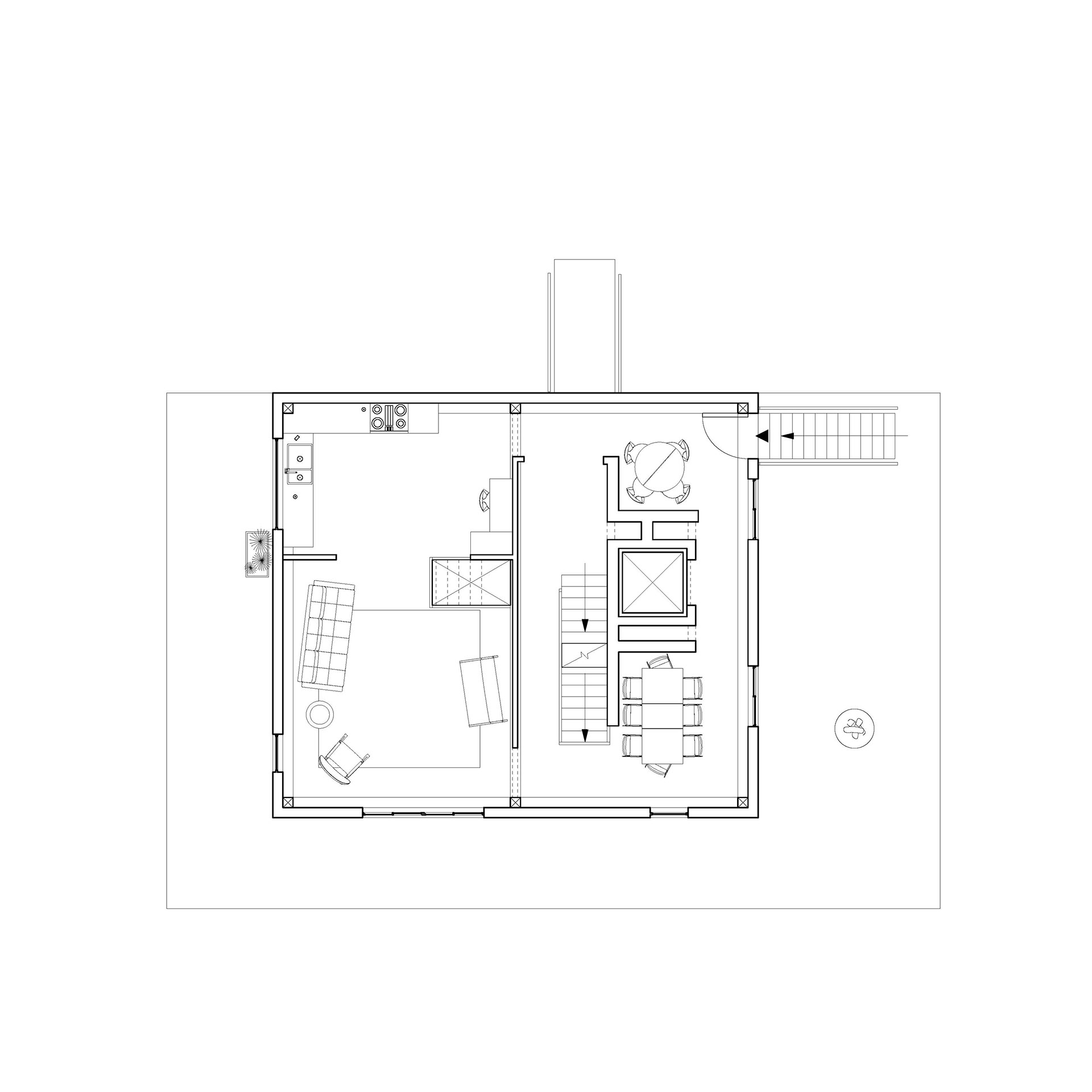
Living Single, Living Together
↑
Back to Top