Projects
Photography
About
Contact
Projects
Photography
About
Contact
Peoples' Palace
Section Perspective
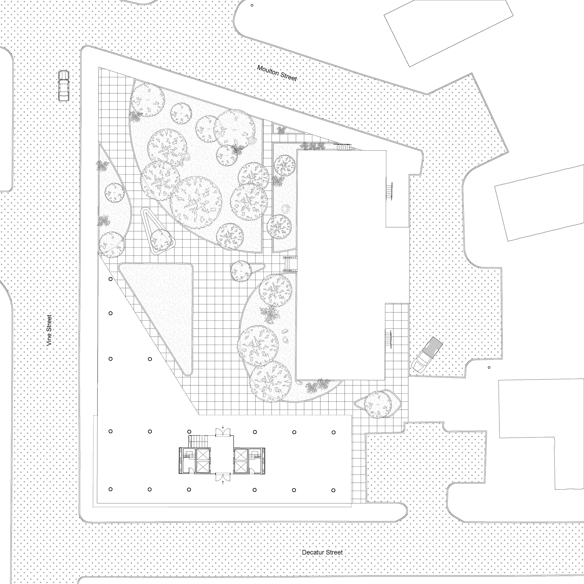
Ground Plan
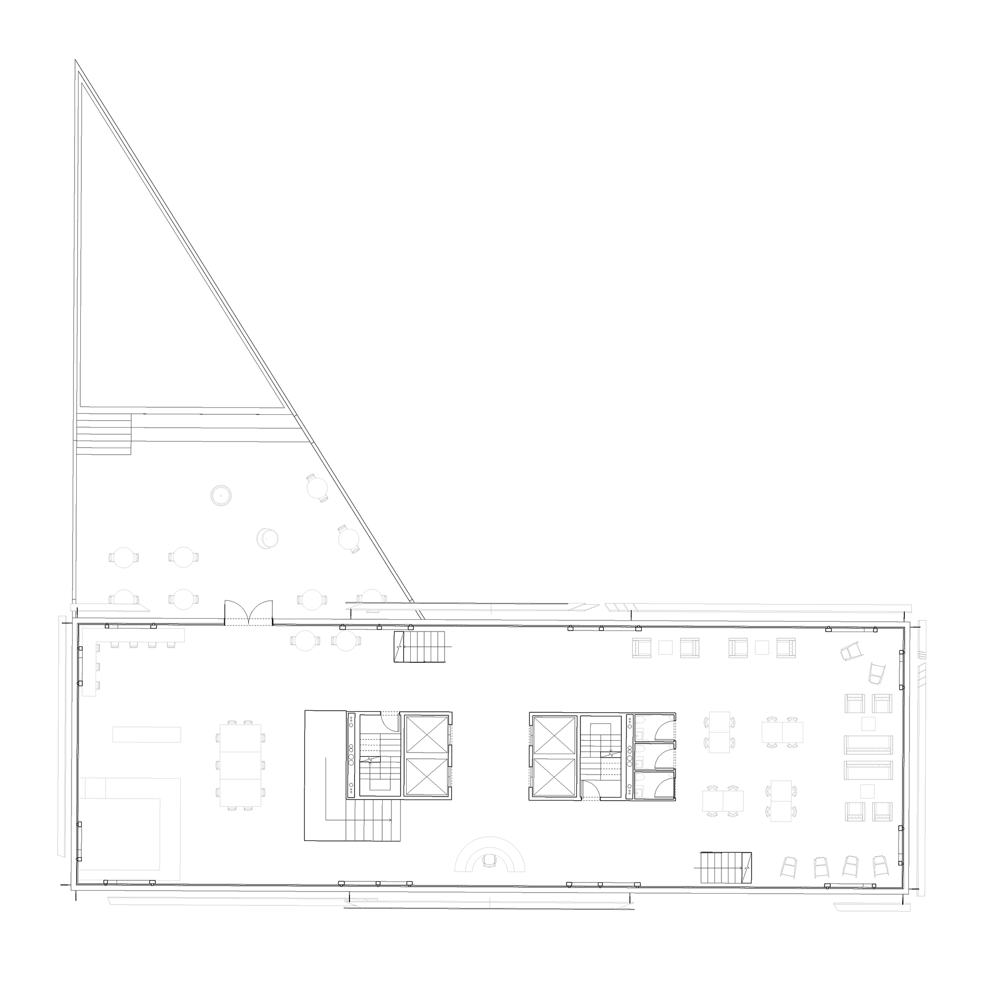
Floor 2
Floor 5
Floor 8
Floor 9
East Elevation
South Elevation
Facade Systems
↑
Back to Top