Projects
Photography
About
Contact
Projects
Photography
About
Contact
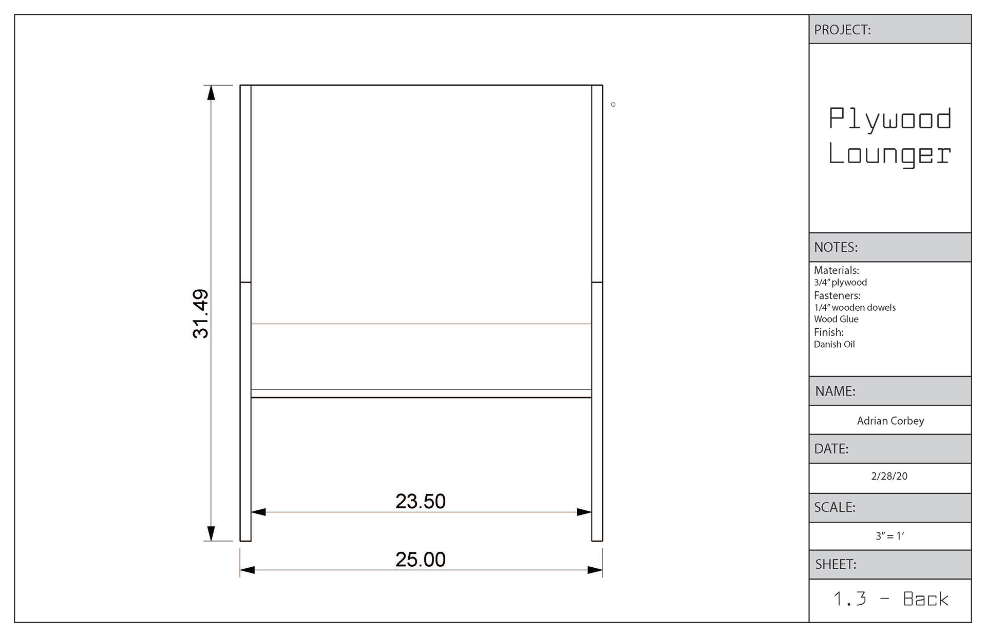
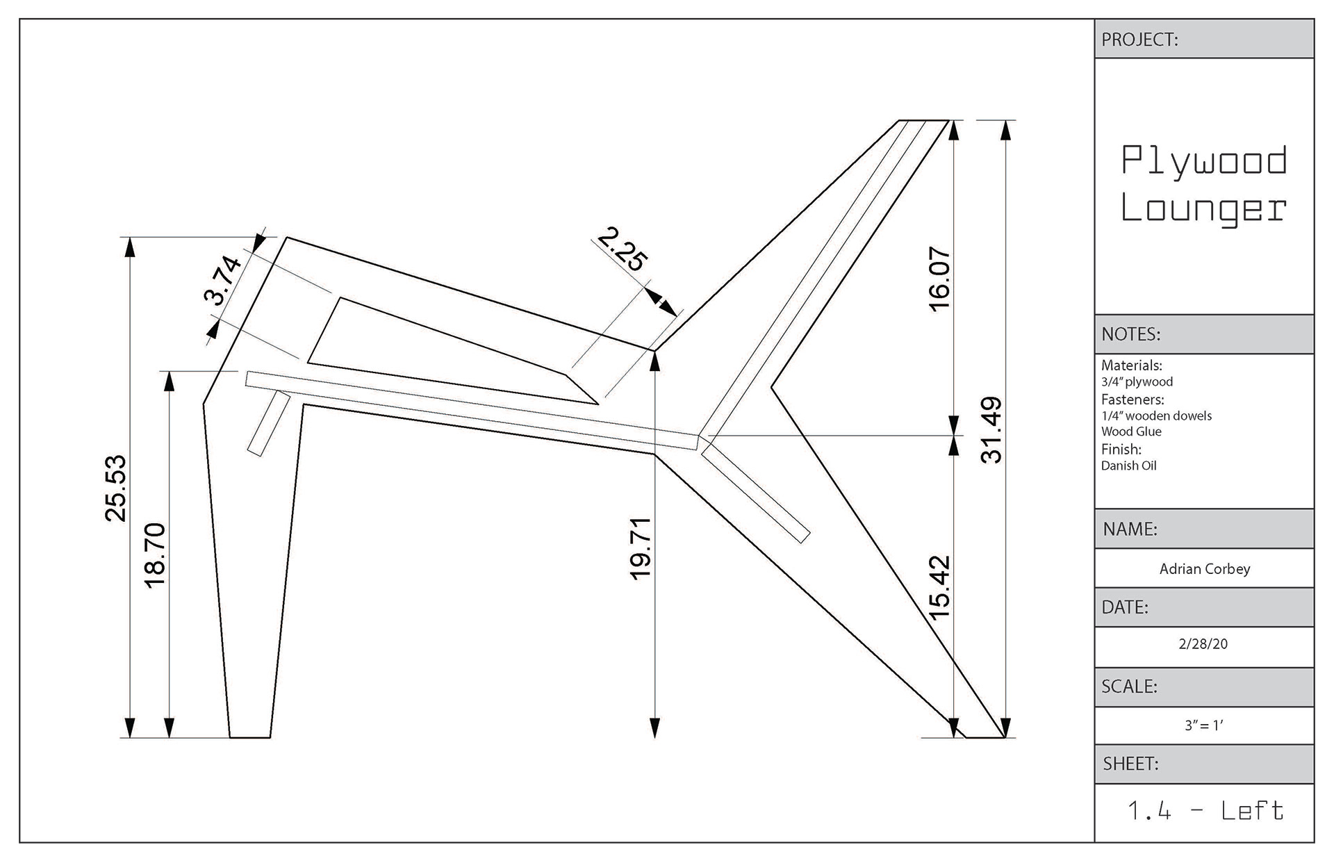
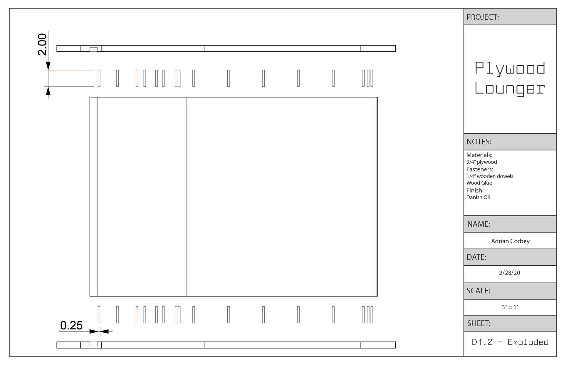
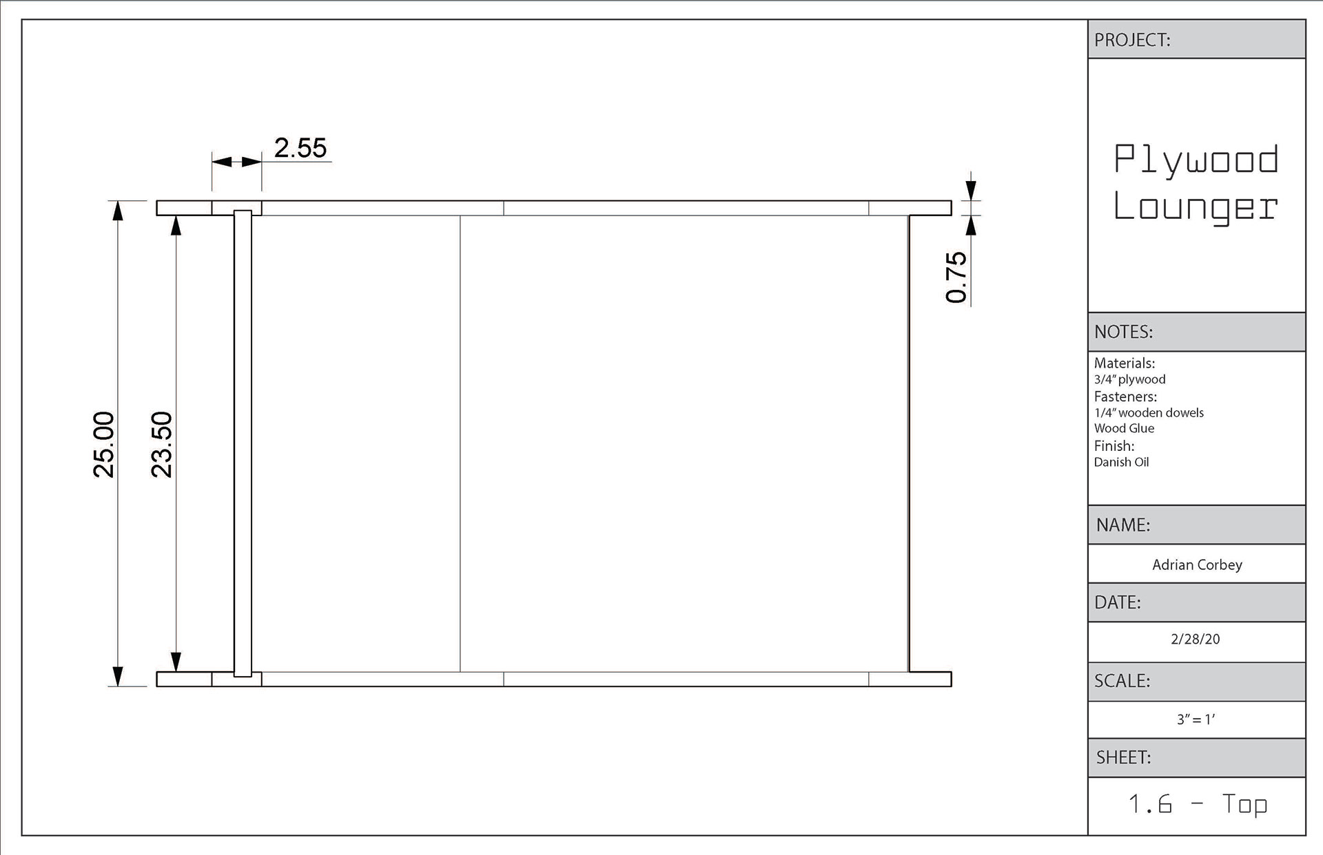
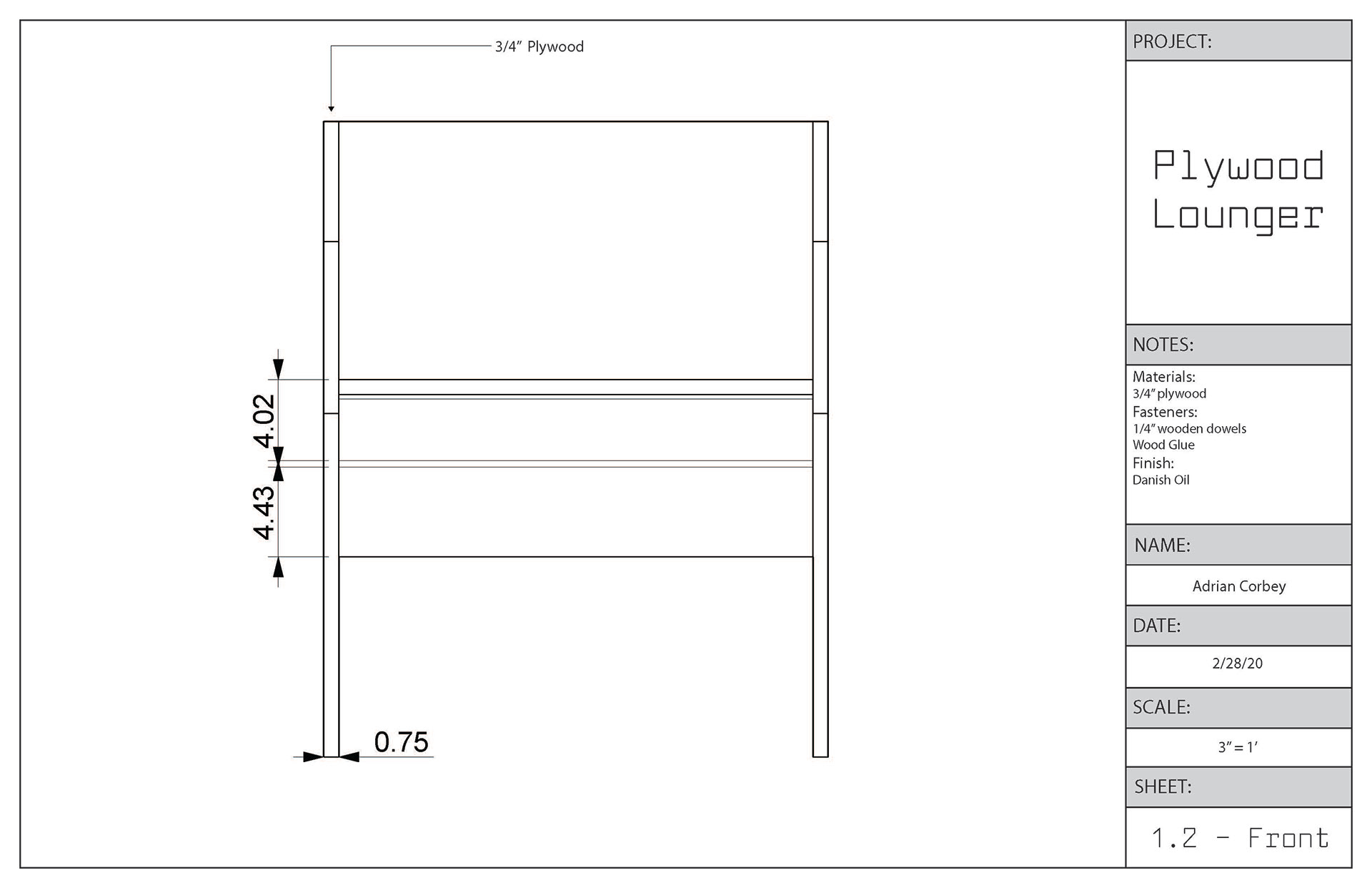
S20 Plywood Lounger
Materials & Methods
↑
Back to Top